Diorama

Project Details +
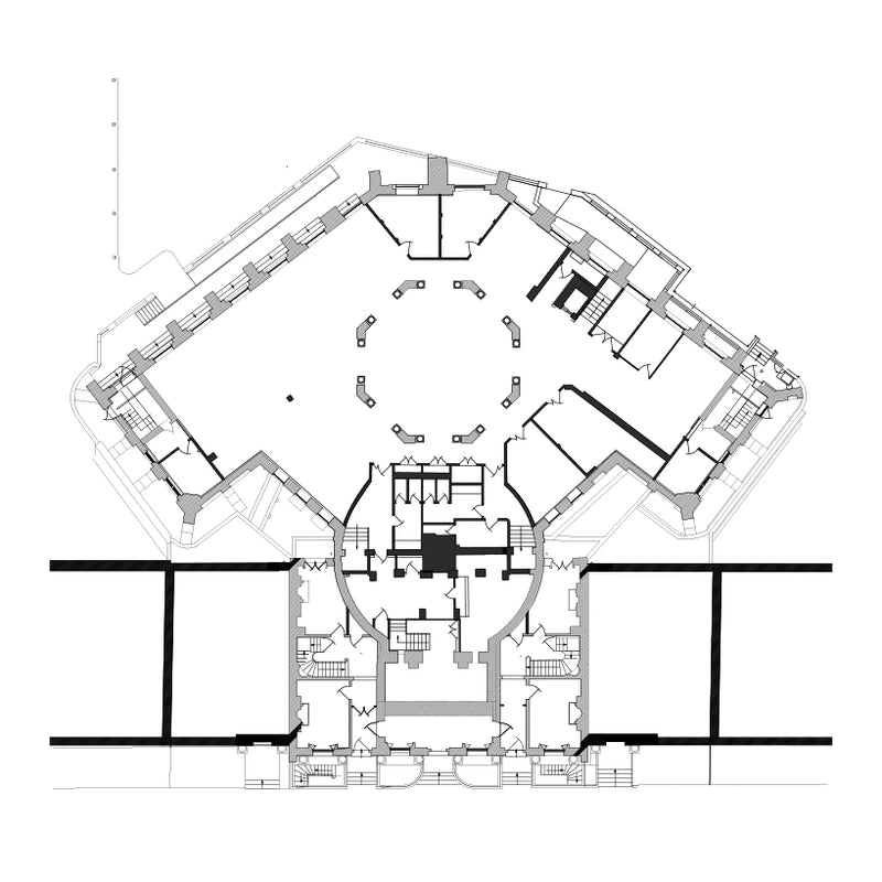
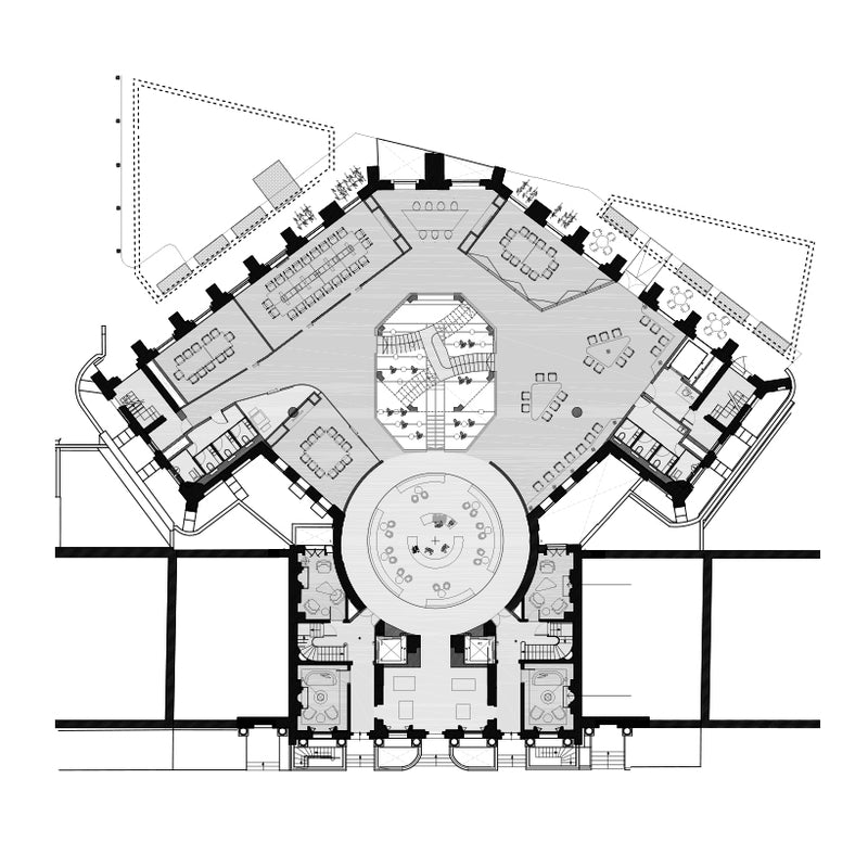
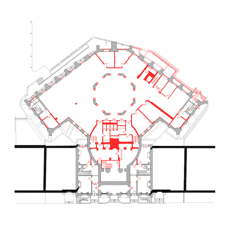
Project Details
LOCATION: London, UK
CLIENT: Lendlease
DATE: 2017-2018
STATUS: Concept Design
SIZE: 2,400 m2 office space
Credits +
Credits
ACME: Ana Arrebola Martinez, Eleni Meladaki, Loh Li Zhi, Friedrich Ludewig, Nicholas Chrysostomou, Shaban ladha
